采购公告

您的位置: 首页 >采购公告>详细内容

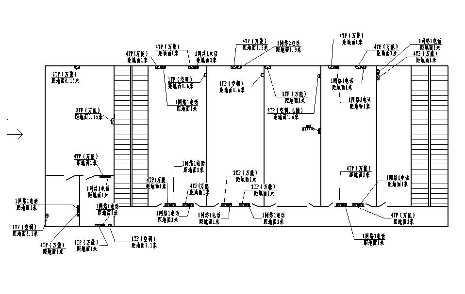
行健楼3楼网络布线点位置参考图

来源:网络 作者:不详 编审: 发布时间:2010-08-15 浏览次数: 【字体:
分享到:

行健楼3楼网络布线点位置参考图

附件下载:行健楼3楼网络布线点位置参考图.rar

×

用户登录